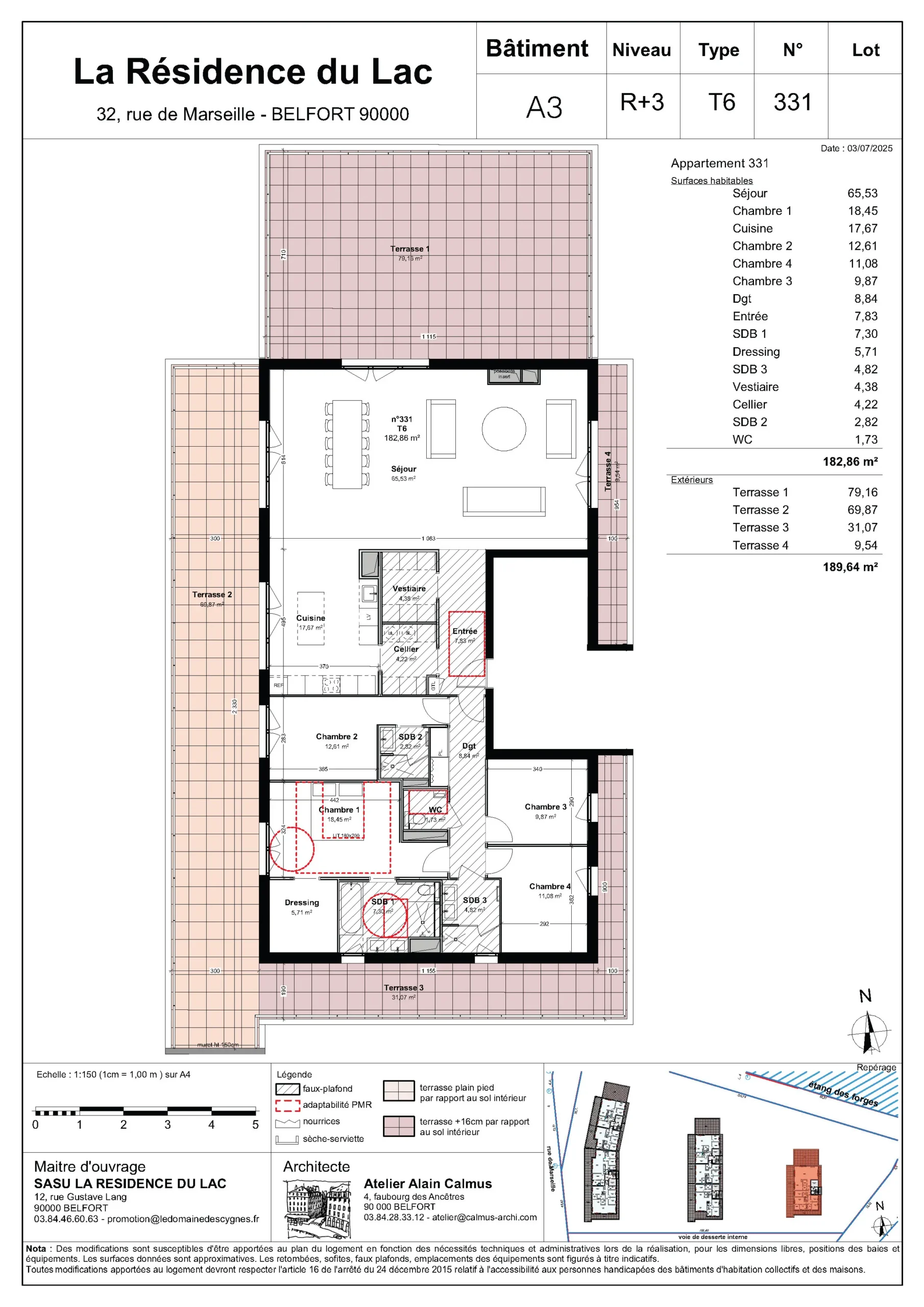
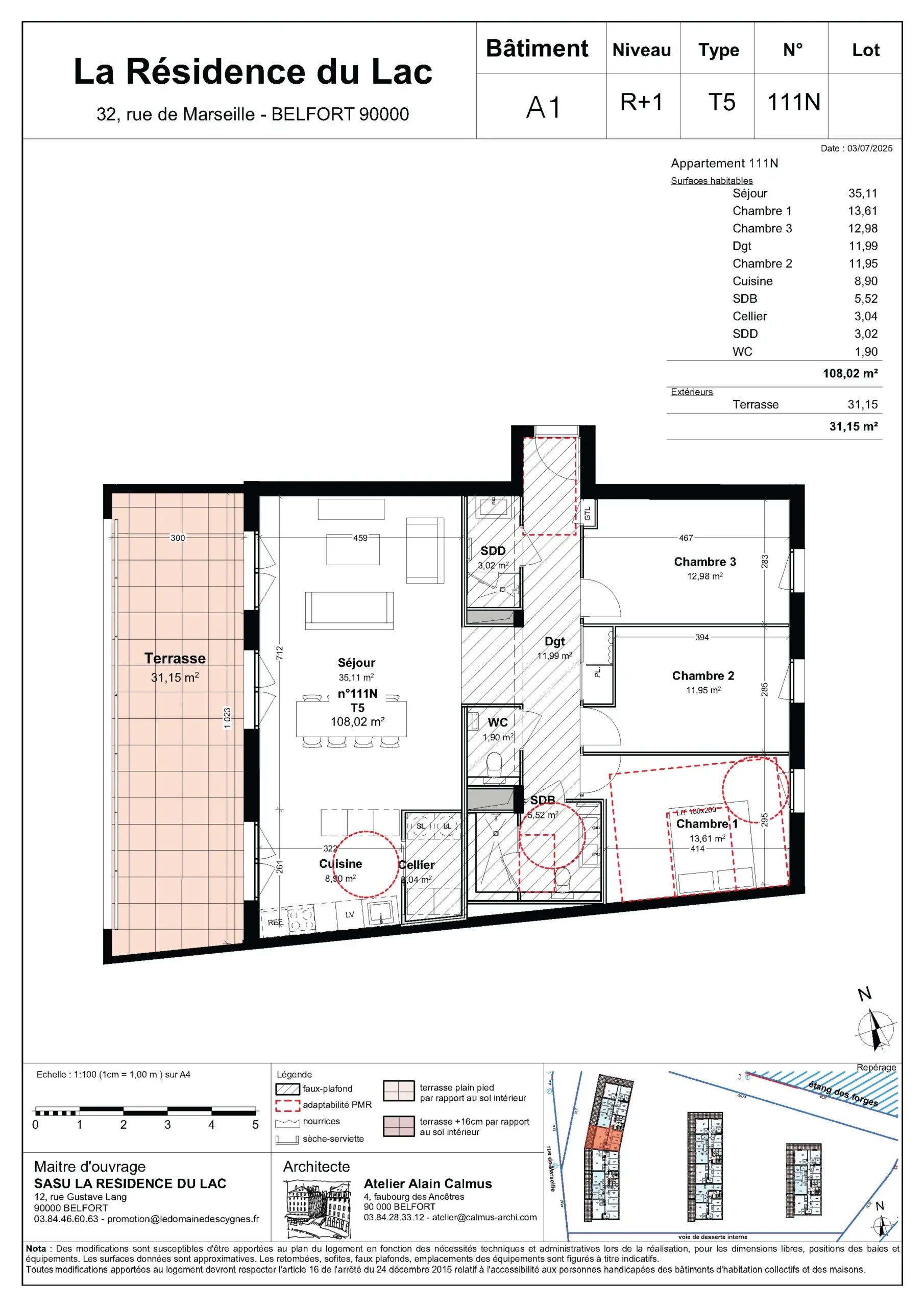
BAT A2 T2 Lot 202

Un cadre de vie exceptionnel face à l’étang des Forges

Bâtiment À acheter, A2, T2

Description

Terrasse plein pied et couverte dans les appartements neufs SPZ Immobilier

Caractéristiques principales :

Points forts :

Un appartement pensé pour répondre aux besoins de toutes les générations, avec de beaux volumes et une situation privilégiée dans un environnement calme et verdoyant.

logement neuf à l'Étang des Forges